about
product design
interior architecture
scenography
painting
photography
contact
about
product design
interior architecture
scenography
painting
photography
contact
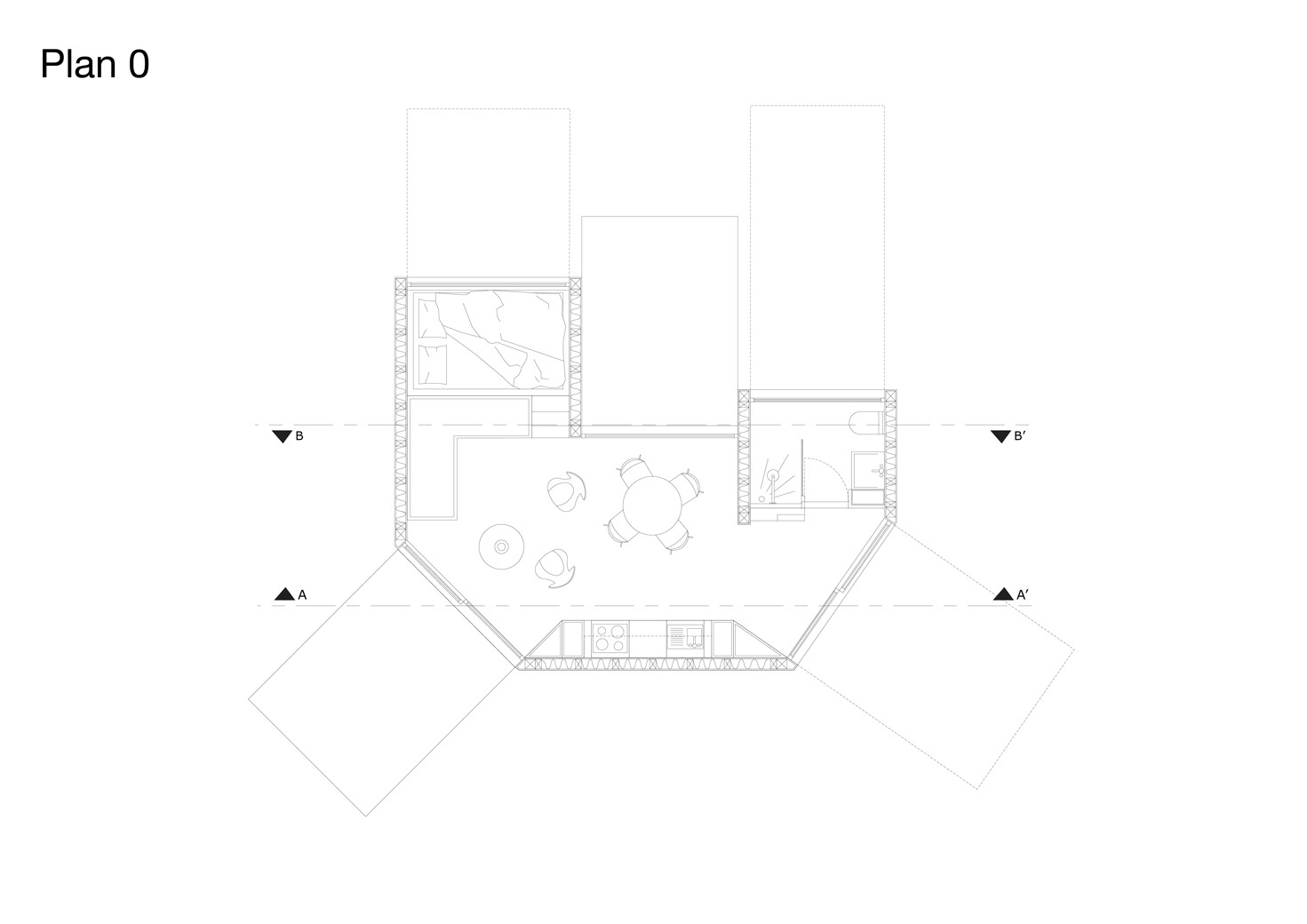
Lisa Bley

Tiny House

You may also like

Into the box
2018
Creativity research
2015
Workshop "Smart"
2017
Lavender Lodge
2017
PURE
2019
↑Back to Top